top of page
610#_003_STRASSE_029.jpg

MarienburgerBusinessSuites

Moderne Büroeinheiten im Herzen von Köln

MarienburgerBusinessSuites –
Ihre moderne Büroeinheit

Entdecken Sie die Zukunft des Arbeitsraums

Büroeinheiten

Mit den MarienburgerBusinessSuites entstehen im Kölner Süden an der Bonner Straße bis zu drei moderne Büroeinheiten, die sich durch Nachhaltigkeit, Urbanität und eine hohe Aufenthaltsqualität auszeichnen. 

 

Die Büroflächen im Erdgeschoss an der Bonner Straße präsentieren sich mitten im Leben und bieten effizient durchdachte Grundrisse mit Flächengrößen von 106 m² bis zu 342 m². 

 

Die Terrassen der Büros sind alle zum ruhigen und begrünten Innenhof ausgerichtet. Insgesamt stehen 5 Tiefgaragenstellplätze zur Verfügung, davon 3 mit Vorrüstung für E-Mobilität. 

 

Die Erschließung der Tiefgarage erfolgt über einen Autoaufzug. Im Untergeschoss sind 3 Abstellräume mit je ca. 2 m² vorgesehen. 

 

Die Fertigstellung der gesamten Baumaßnahme ist für das erste Quartal 2027 geplant. Der Verkauf bzw. die Übergabe der Büroflächen erfolgt im veredelten Rohbau. Somit hat der zukünftige Erwerber/Nutzer die Möglichkeit, seine individuellen Vorstellungen hinsichtlich des Innenausbaus zu realisieren. 

 

Die Gesamtmaßnahme umfasst neben den Büroflächen auch die Errichtung von 24 Eigentumswohnungen und 5 Stadthäusern.

610#_002_INNENHOF_031.jpg
677#_001_TERRASSE_006.jpg

Ausstattung

Insgesamt präsentiert sich die Projektentwicklung in einem modernen Ambiente und bietet effizient geschnittene Büroräume unterschiedlicher Größe. 

Folgende Ausstattungsmerkmale seien besonders erwähnt: 

 

  • KfW 55-Standard, Energieeffizienzklasse A+

  • Photovoltaikanlage

  • Wärmeversorgung über Luft-Wasser-Wärmepumpe

  • 3-fach Verglasung mit Schallschutzqualität

  • Paketstation im Objekt

  • Tiefgaragenstellplätze für E-Mobilität vorgerüstet

  • Einbruchhemmende Eingangstüren

  • Video-Gegensprechanlage mit Option zur Smartphone- Aufschaltung

  • barrierefreier Zugang von der Tiefgarage bis in alle Einheiten    

  • elektrische Verschattung über Raffstores

  • Glasfaseranbindung bis in die Büroflächen

  • pro Einheit ein Kelleranteil

Kölner_Süden.jpg

Lage und Umgebung

Der Kölner Stadtteil Marienburg zählt zu den wenigen noch geschlossenen, von Architektur und Grünplanung bestimmten Villengebieten in Deutschland. Führende Architekten haben hier viel beachtete und oft auch international anerkannte Bauten geschaffen.

 

Weite Alleen und prächtiger alter Baumbestand verleihen Marienburg eine einzigartige Atmosphäre. 

Lebensmittelgeschäfte findet man in den unmittelbar angrenzenden Stadtteilen Bayenthal und Rodenkirchen sowie auf der Bonner Straße. Auf kurzem Wege sind Ärzte, Apotheken, Banken, sämtliche weiterführende Schulen und Kindergärten sowie vielfältige Einkaufsmöglichkeiten fußläufig erreichbar. 

 

Es bestehen sehr gute Verkehrsanbindungen - sowohl an die Innenstadt, als auch an den Kölner Autobahnring. Über den Verteilerkreis Köln-Süd gelangt man schnell auf die Autobahnen BAB 4 und BAB 555. Der Hauptbahnhof und der Flughafen Köln/Bonn sind in etwa zehn bis fünfzehn Fahrminuten erreicht. Die Haltestellen der öffentlichen Verkehrsmittel, Bus- und  Straßenbahn-Linien sind nur einen Steinwurf entfernt. 

Keyfacts

Kecfacts

MarienburgerBusinessSuites

im Überblick

Immobilie

Baujahr 

Besonderheiten

eine bzw. drei Neubau-Büroeinheiten

geplant 1. Quartal 2027

- Terrassen zum begrünten Innenhof

- Abstellkeller für alle Einheiten

- Übergabe im veredelten Rohbau

2027

3

Fertigstellung

Moderne Büroeinheiten

106 m² - 342 m²

5

Büroflächen

Tiefgaragenstellplätze

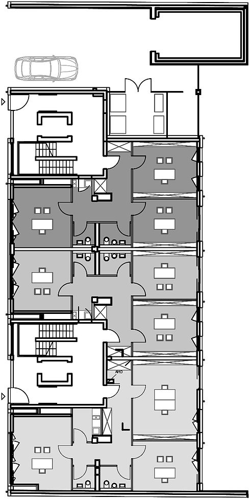
Grundriss

Büroflächen Variante "3 Einheiten"

Erdgeschoss G1    ca. 106 m²

Erdgeschoss G2    ca. 106 m²

Erdgeschoss G3    ca. 127 m²

Grundriss

Büroflächen Variante "1 Einheit"

Zusammen.jpg

Erdgeschoss.          ca. 342 m²

bottom of page